
Registered Charity No.301148
Email: Enquiries@Lytchettmatraversvhall.co.uk

Lytchett Matravers Village Hall is a welcoming and well-equipped community venue located in the centre of the village, overlooking the Recreation Ground.
It provides flexible space for a wide range of activities, from meetings and fitness classes to theatre productions, performances and is available for private events, including parties and weddings.

The Village Hall is situated in rural Dorset, in the middle of Lytchett Matravers and anjoys spectacular views over the large Recreation Ground, Poole Harour and the Purbeck Hills beyond.
Easily accessed from A35 and A30 and adjacent to the local Recreation Ground car park

The Main Hall is a bright, spacious and flexible space ideal for exercise classes, larger events, theatre performances, live music, functions and celebrations
Featuring:

The Blanchard Room is a smaller, more informal space.
Ideal for meetings, workshops, small classes and children’s activities
It can also be used alongside the Main Hall to support larger events.

Excellent WiFi
Central Heating
Accessible toilets and level access
Tables and chairs for a range of layouts
Stage and performance space
Fully equipped kitchen with serving hatch, including:
Storage (for agreed regular users)
Parking available at the nearby Recreation Ground

The hall can accommodate a variety of event formats, including:
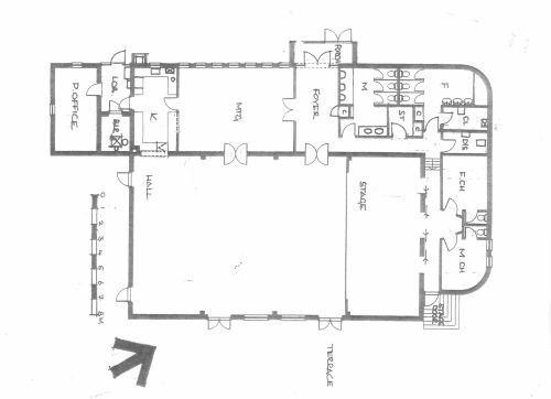
A floor plan is provided here to help you plan your event and understand the layout of the building.